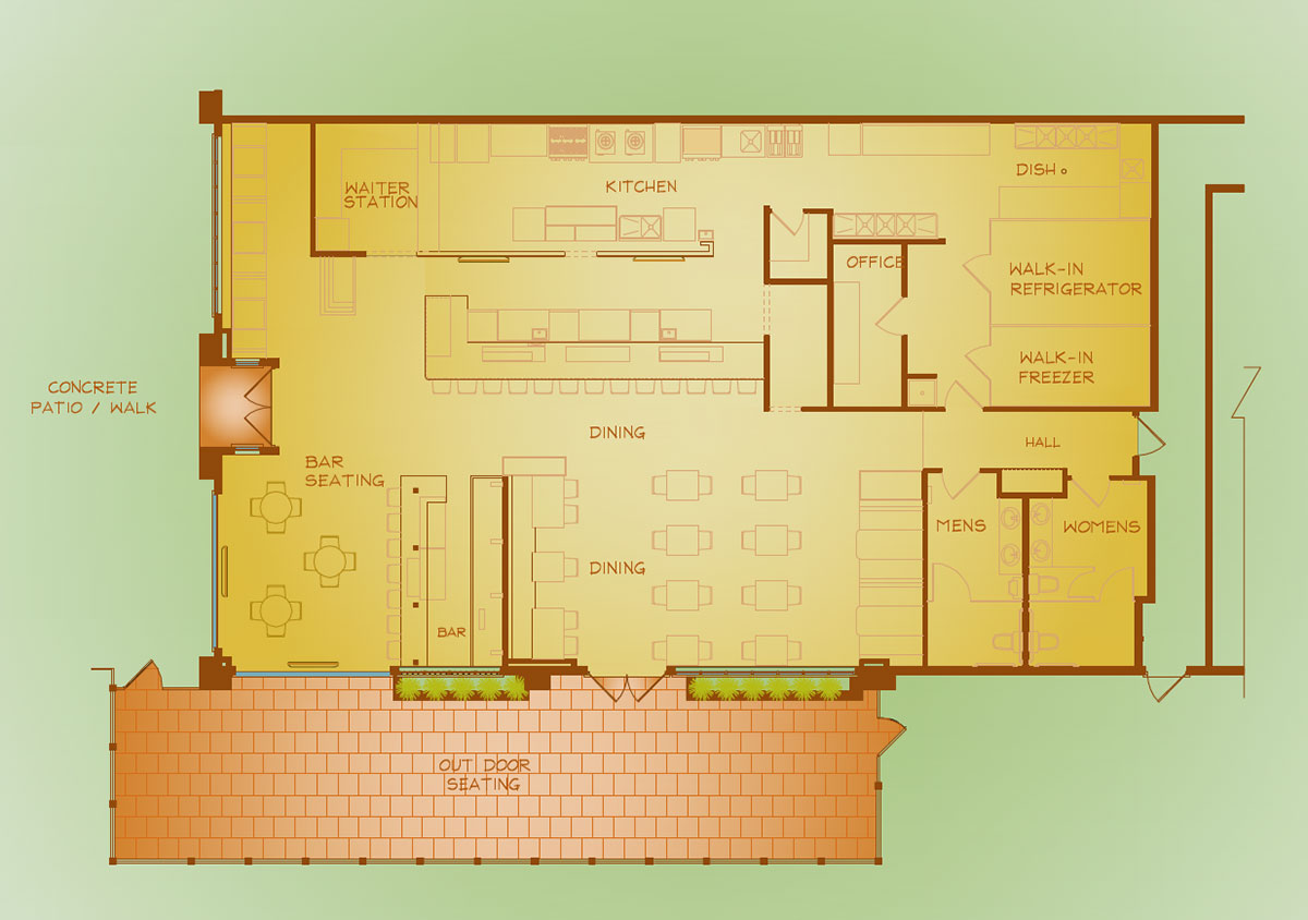
Monterey, California
2009
4,000 s.f.
Tenant improvement of a new 147 seat Japanese cuisine Sushi style restaurant for a prime location at the Del Monte Shopping Center in Monterey, California. All new dining areas, interiors, bar areas and exterior patio areas, full kitchen, office area, service areas and rest rooms. Approvals through the city of Monterey.
